Hay propiedades que destacan por su tamaño, otras por su ubicación. Y luego están aquellas que, por su configuración y carácter, resultan realmente difíciles de encontrar en el mercado.
Esta finca pertenece a esa categoría.
Su extraordinaria parcela de más de 3.000 m², situada en un discreto cul-de-sac dentro de la Urbanización Las Lomas, ofrece un nivel de privacidad poco habitual incluso en esta urbanización.
Pero lo que verdaderamente convierte esta propiedad en algo especial es su estructura: tres edificaciones independientes que conviven dentro de la misma finca, creando un conjunto con enormes posibilidades de uso.
La casa principal articula la vida familiar. La casa de invitados permite recibir con total independencia. Y el amplio anexo con sótano y acceso propio desde el exterior abre la puerta a múltiples posibilidades: desde un espacio profesional para trabajar desde casa hasta un estudio creativo, zona wellness o vivienda adicional.
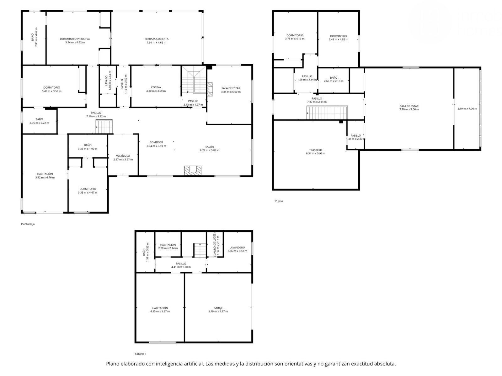
Casa Principal: 3 plantas, baja, primera y sótano. Jardin de diseño muy cuidado con Piscina.
Planta baja: 3 dormitorios en planta, cocina con amplio office, gran salón comedor y zona de despacho, 4 baños amplísima terraza cubierta conectada con jardín que da a la piscina. Esta planta posee ademas un espacio dentro de la casa con acceso independiente, con su propio salón, baño y dormitorio. Ideal para tener independencia dentro de la misma zona.
Plata superior: -2 amplios dormitorios con un baño amplio para ambos, increíble y amplia zona de estar abuhardillada con vistas a la sierra
Planta sótano: Lavandería , baño, 2 habitaciones, y garaje para 2 coches.
Casa de invitados: Toda en una planta. 2 dormitorios , 2 baños, zona salon comerdor y cocina completa independiente.
Anexo: actualmente zona diáfana de trabajo, con acceso desde el interior a sótano computable, el cual conecta directamente con acceso independiente desde la calle con altura para carga/ descarga.
Construida en 1982 y cuidadosamente mantenida por sus actuales propietarios, la propiedad conserva una base sólida que invita a ser interpretada por quien sepa reconocer su potencial.
No es una vivienda pensada para todo el mundo.
Es una propiedad que suele atraer a quienes, al verla, comprenden de inmediato lo que puede llegar a ser.
Por su singularidad y potencial, esta finca está especialmente indicada para compradores que sepan apreciar el valor de un enclave privilegiado y las posibilidades que ofrece una propiedad con estas características.
Las visitas se organizan exclusivamente con cita previa, priorizando a aquellos interesados que busquen una propiedad verdaderamente diferencial en una de las zonas residenciales más consolidadas del noroeste de Madrid.
INMOBhomes
Boutique Real Estate